PBB-Logo4

PBB Baumann

PBB-Logo4

Studentenwohnungen im Vierseitenhof mit Traditionskneipe als Verbindungshaus

Entwurf einer Studenten- wohnanlage im alten Vierseitenhofcharakter der Ursprungsstruktur konzipiert als Verbindungshaus mit Traditionskneipe unter Nutzung des vorhandenen unter Denkmalschutz stehenden Altbestandes und der Berücksichtigung modernen Wohnens mit dem Einsatz heute üblicher entsprechender neuester technischer Ausstattung.

altrea_b

Bauherr:                                                                                          Bauträger
Planung Behördenkoordination Bauvoranfrage:                                    PBB Baumann
Planung Behördenkoordination Bauantrag für PBB Baumann         :    Planungsteam Dresden, Baumann & Assoziierte
                

Bauvoranfrage

Altraevorplan2b
Altraecknitz_1b

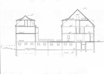
Nordansicht Neubau mit Tiefgaragenzufahrt

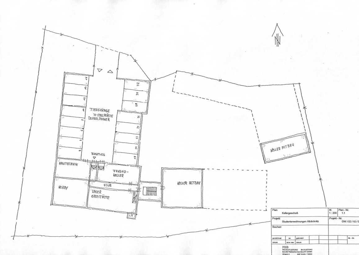
Grundrisse Keller mit Tiefgaragenebene und Doppelparkern

Altraecknitz_2b
Altraevorplan1b

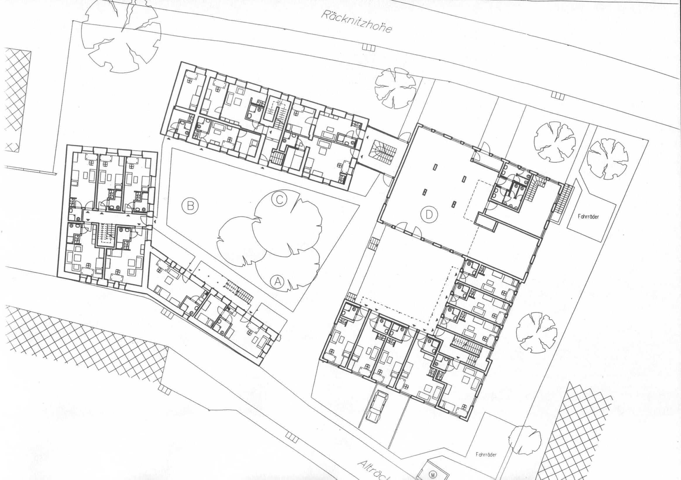
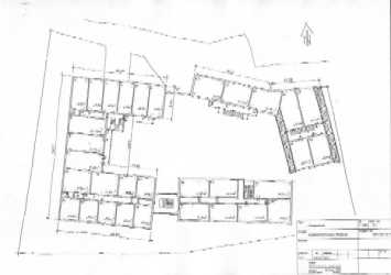
Grundrisse  Erdgeschoß

Westansicht Neubau

Altraecknitz_3b
Altraevorplan3b

Grundrisse  1. Obergeschoß

altraeskizze_b1

Südansicht Neubauteil mit gläsernem Verbindungstreppenhaus

Die Bauvoranfrage sollte die Machbarkeit der Umstrukturierung eines ehemaligen, früher bäuerlich genutzten Vierseitenhofes zu einer Studentenwohnanlage mit Verbindungshaus- charakter in unmittelbarer Nähe der Universität klären.Die eingereichte Bauvor- anfrage wurde von der Behörde voll positiv beschieden, mit der Auflage sich bei der weiteren Bearbeitung des Entwurfes an die äußeren Grenzen der Planung der Bauvor- anfrage zu halten, die äußere Gestaltung entsprechend beizubehalten und die vor- handene alte Bausubstanz weitestgehend
zu erhalten, bzw in Teilbereichen dem Urzustand entsprechend neu aufzubauen
.

Altraecknitz_4b
Altraevorplan4b

Grundrisse Dachgeschoß

Südansicht Neubau Innenhof mit Treppenhausturm und Toranlage

Altraecknitz_5b

Ostansicht Neubau mit Schnitt durch das gläserne Verbindungstreppenhaus zum Altbestand und Treppenhausturm

Nordansicht Neubau Innenhof mit gläsernem Verbindungstreppenhaus und Schnitt durch die Tiefgaragenebene mit Doppelparkern

Altraecknitz_6b

Bauantrag

altreafoto1_a

Foto Ansicht Innenhof Ostseite

Altraeplan2b

Ansicht Innenhof Ostseite

altraenordansicht_b

Ansicht Nordseite mit Tiefgaragenzufahrt und Zugang zum Innenhof

altraefoto5_a

Foto  Ansicht Nordseite

altreafoto2_a

Foto  Ansicht Nordseite

altraenordansichtinnen_b

Ansicht Innenhof Nordseite mit Schnitt durch die Tiefgarage mit Doppelparkern

altreafoto4_a

Foto Ansicht Innenhof Ost-und Nordseite

altraefoto7_a

Foto Ansicht Ost und Nordseite

altraefoto6_a

Foto Ansicht Innenhof Nordseite

In dem von uns erstellten Bauantragsplanung  wurden die Grundrisse optimiert, die Traditions- kneipe auf das Maß der zu erwartenden Nutzung verkleinert, der Treppen- hausturm aus der Bauvor- anfrage entfernt und die Treppe in den Innenbereich des Gebäudes verlegt, die Anzahl und der Zuschnitt  der Studenten wohnungen und Appartments optimiert.

In unserer zum Bauantrag erstellten Bau- und Qualitätsbeschreibung wurde die Ausstattung mit Festlegung der Materialien im Innen- und Außen- bereich genau definiert.
Die Auflagen der Genehmi- gungsbehörden wurden entsprechend berück- sichtigt und statische und haustechnische Planungen mit in den Bauantrag eingearbeitet

altraesuedansichtinnen_b

Ansicht Innenhof Südseite mit Treppenhausverbindung Alt- , Neubau und Schnitt durch den Neubau mit Tiefgaragenebene

altraewestansicht_b

Ansicht Westseite Neubautrakt

altreafoto3_a altraewestansichtinnen_b

Foto Ansicht Innenhof Westseite

Ansicht Innenhof Westseite mit Schnitt durch das Verbindungstreppen- haus zwischen Alt- und Neubau

altraesuedansicht_b

Ansicht Westseite mit Verbindungstreppenhaus Alt-, Neubau links Zugang zur Traditionskneipe

altraefoto8_a
altraeplan5_b

Grundrisse Obergeschoß

altraeplan4_b

Foto Ansicht Südseite

Altraeplan1b

Grundrisse Erdgeschoß

Altraeplan3b

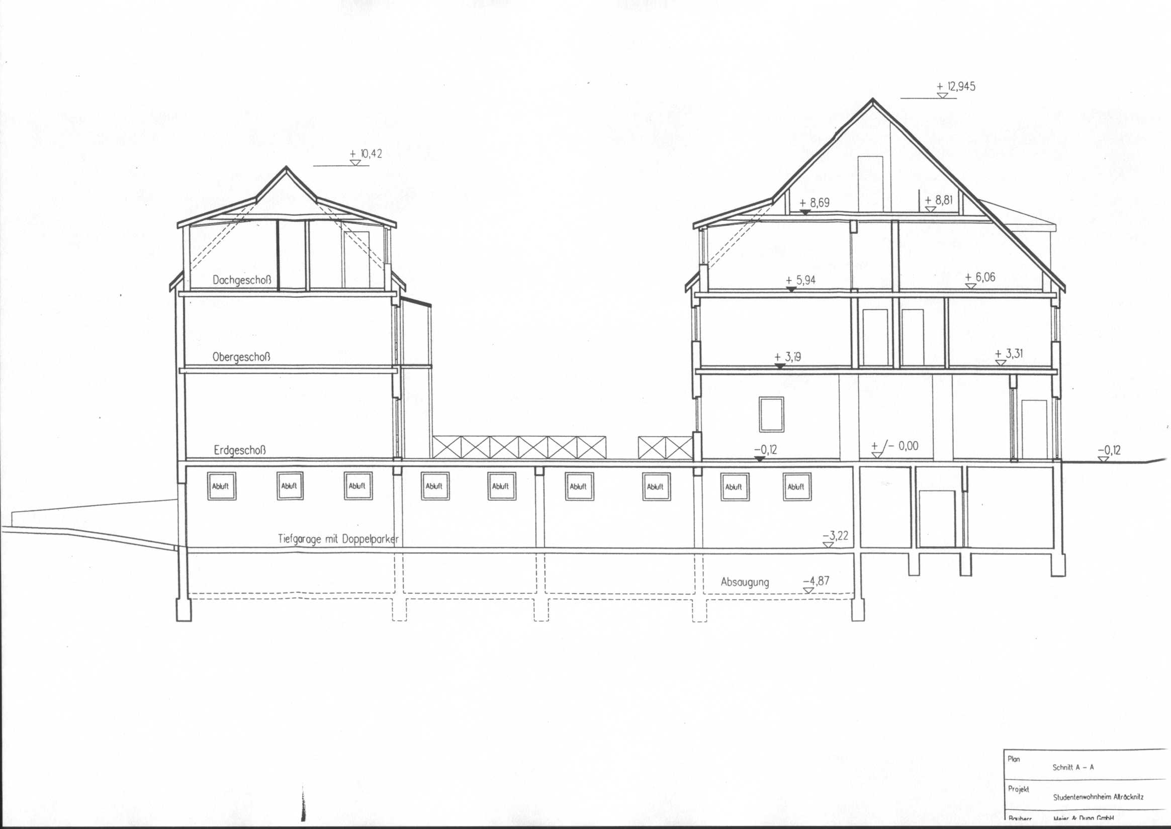
Schnitt Neubau mit Schnitt durch die Tiefgaragenebene

Grundrisse Dachgeschoß

BasicLine