PBB-Logo4

PBB Baumann

PBB-Logo4

Zweifamilienhaus im Stadtrandbereich von Dresden

Neubau eines Zweifamilienwohnhauses unter Berücksichtigung von drückendem Grundwassser im Kellerbereich
Entwurfs-, Ausführungsplanung, AVA und Objektüberwachung : PBB Baumann

erkmannsost1b
erkmannsschnitt1a

Aufgabenstellung war ein Haus für mehrere Generationen zu konzipieren und für alle genügend Freiraum zu schaffen.
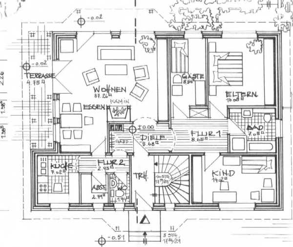
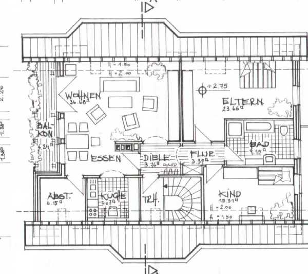
Zur Ausführung kam ein 2 Familienwohnhaus mit Krüppelwalmdach, voll ausgebautem Kellerbereich mit Büro, Sauna, großen Spielflächen für die Kinder und einer neben dem Haus stehender Doppelgarage
. Die Dachgeschoß- wohnung erhielt einen großzügigen vorgesetzten Holzbalkon
Im Bereich des Eingangsbereiches und der Terasse wurde das Dach weiter abgeschleppt.

erkmannsdg1b

Auf Grund des drückenden Wassers vor Ort durch Grundbohrungen festgestellt  wurde das Gebäude auf einer 40 cm dicken Kalksteinschotterschicht gegründet.
Auf eine umfassende Grundwasserabsenkung wurde aus kostengründen verzichtet, statt- dessen wurde in der Baugrube ein Pumpen- sumpf während der Kellerbauphase angelegt.
Der Keller besteht bis zur Höhe der Bodenan- schüttung aus WU Beton, ausgeführt als weiße Wanne
Die Abdichtung des Überganges zwischen WU Stahlbetonsohle und WU Stahlbetonwänden erfolgte mit Einsatz eines Injektionsverfahrens
.

BasicLine