PBB-Logo4

PBB Baumann

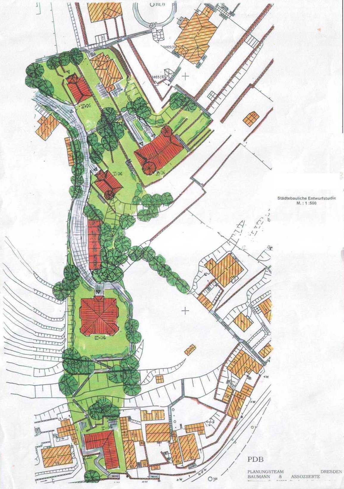
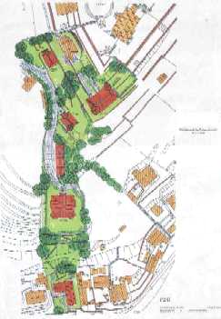
Städtebauliche Studie einer Steilhangbebauung unter Berücksichtigung der Topographie

Bauherr :                                                        Grundstückseigentümer
Planung für PBB Baumann          :                   Planungsteam Dresden Baumann & Assoziierte

Städtebauliche Entwicklungsstudie einer Hangbebauung unter Ausnutzung der Topographie mit dachbegrünten Park- platzanlagen und Anlegung von Regenrückhaltebecken mit der Nutzung  zur Bewässerung im Sommer. Fuß und Fahrwege verbinden die einzelnen Objekte.

rissV1_b

Variante II unter Nutzung nur des Grundstücks des Bauherrn

riss_b

Variante I unter Nutzung der nach- barlichen Grundstücke durch die Möglichkeit der Erschließung über das Grundstück des Bauherrn

BasicLine
PBB-Logo4