|
|
|
|
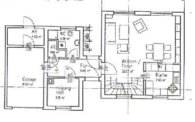
Einfamilienhaus bei Dresden |
|
Die Zielsetzung der Bauherrschaft bestand darin ein Haus zu bauen, das den Bedürfnisssen eines Zweipersonenhaushaltes entspricht . Die Gestalltung sollte weitestgehen offen sein. Auf Grund der Gegebenheiten vor Ort ( hoher Grundwasser- stand ) wurde eine Unterkellerung ausgeschlossen . |
|
|
|
|
||||||||||||||||||||||||||||