|
|
|
|
Entwurfskonzeption in Herten Süd |
|
Koordination Entwurfskonzeption PBB Baumann |
|||||||||||||
![]() |
|||||||||||||
|
Altenwohnungen herkömmlicher Art sind Wohnungen für “Alte Leute”. |
|||||||||||||
|
AWohniuM |
|||||||||||||
|
Alternatives |
|||||||||||||
|
Wohnen |
|||||||||||||
|
in unserer Mitte |
|||||||||||||
|
beinhaltet Wohnungen, in die man in jedem Lebensalter einziehen und alt werden kann. |
|
Wohnqualität durch Barrierefreiheit; ärztliche Dienstleitungen nebenan; 24 Std. Sicherheitsdienst; Fitness und Wellnessbereich ; Kreativraum; Kommunikationszonen; Tiefgarage sowie gute Verkehrsanbindung; Einkaufsmöglichkeiten auch zu Fuß erreichbar; Kirchen und soziale Einrichtungen in greifbarer Nähe; |
|
Die Entwurfskonzeption umfaßt eine geschlossene Blockbebauung im Zuge der Herner Strasse , Schützenstrasse mit der Durchfahrt zur hinteren innenliegender Bebauung, die die Charakteristik einer Reihenhausbebauung aufnimmt und von der Dachform sich an die alten Wohnhaussiedlungen anlehnt. |
![]() |
|
Das Fassadenkonzept sieht für die Blockbebauung im Bereich der Schützenstrasse sowie an den angrenzenden Seitenfronten eine moderne Tonziegelfassade mit abgesetzter Bänderung vor. Die überbaute Durchfahrt zeigt sich in diesem Bereich als Bindeglied und Kontrast zwischen den Gebäuden als Glasvorhangfassade. Das zurückgesetzte Dachgeschoss ist umlaufend als Stahl/Holzkonstruktion mit einer Stulp-Deckel-Schalung aus Lerchenholz vorgesehen. Die Balkone zu den Strassenseiten sind durch Glasflächen schließbar. . |
||||||||||||||||||||||||||||||||||
![]() |
||||||||||||||||||||||||||||||||||
|
Die rückwärtigen Fassaden sind als WDVS-Fassade mit sandfarbene Putz und einer farbigen Bänderung , die dem Farbton der Vorderfassade entsprechen, vorgesehen. Alle Fenster des Baukörpers „Gebäude Schützenstrasse“ sind als Kunststoffenster weiß vorgesehen. Für die Dacheindeckung diese Baukörpers sieht das Fassadenkonzept ein 20° Pfannendach in dunkelblau vor. |
||||||||||||||||||||||||||||||||||
![]() |
||||||||||||||||||||||||||||||||||
|
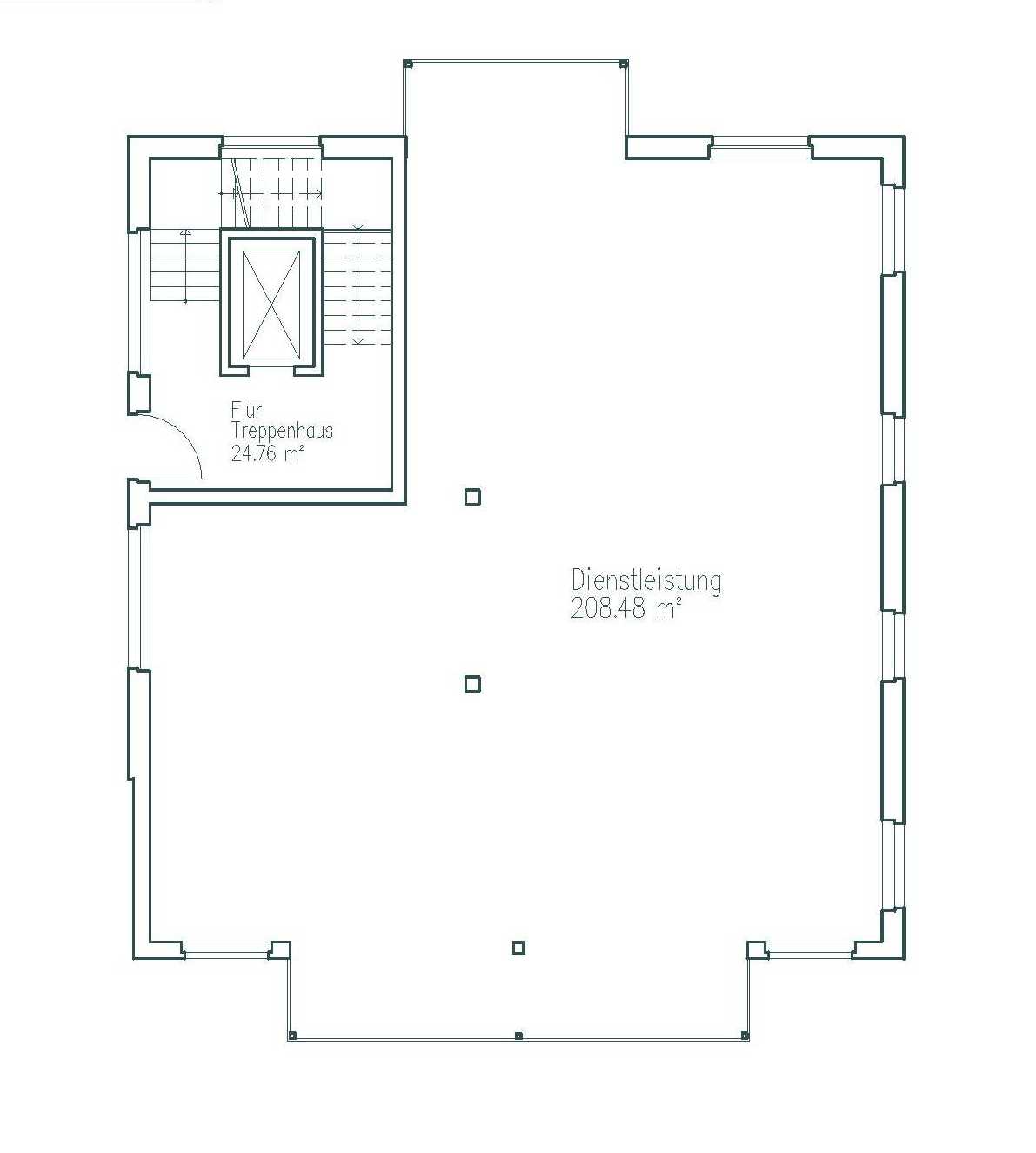
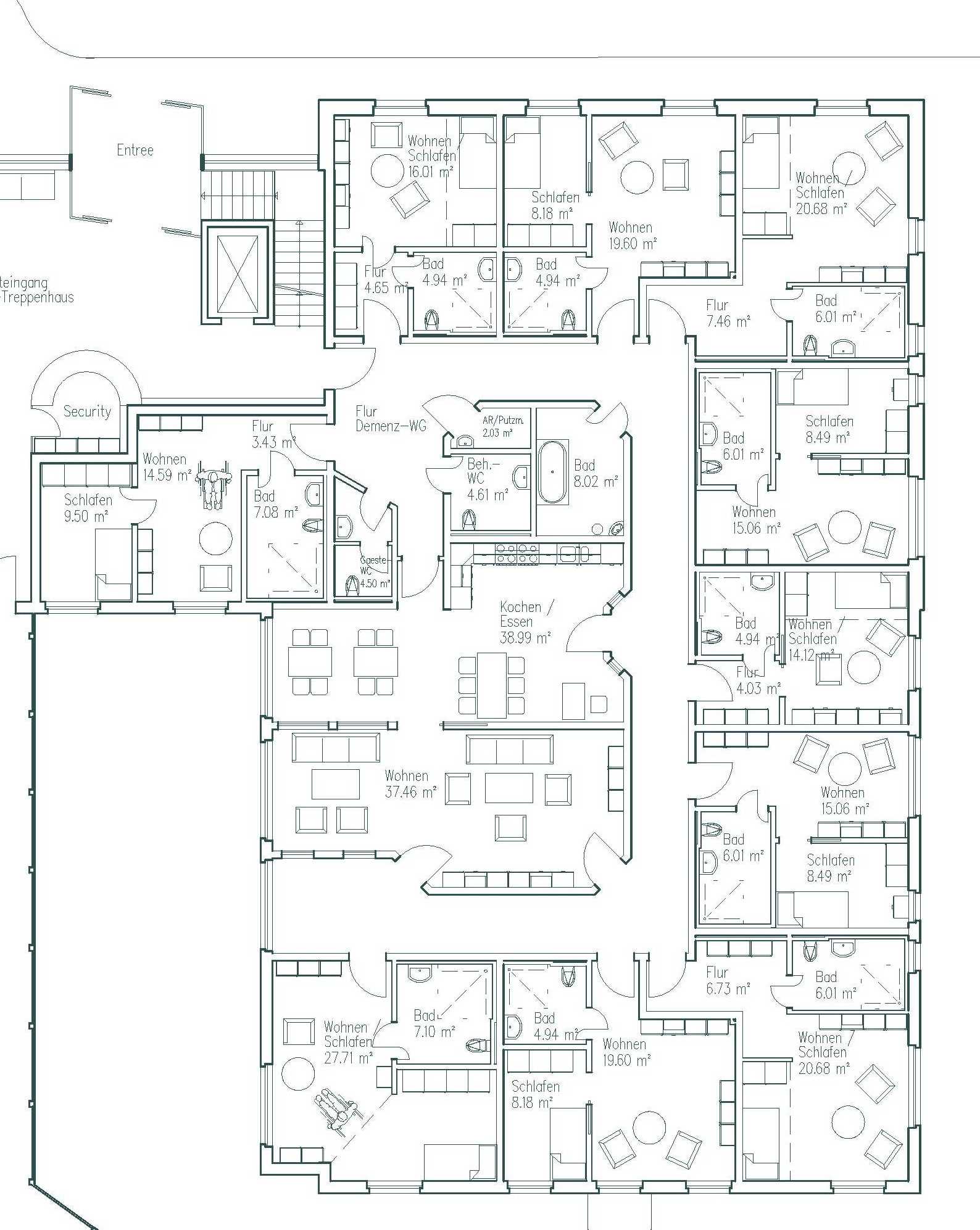
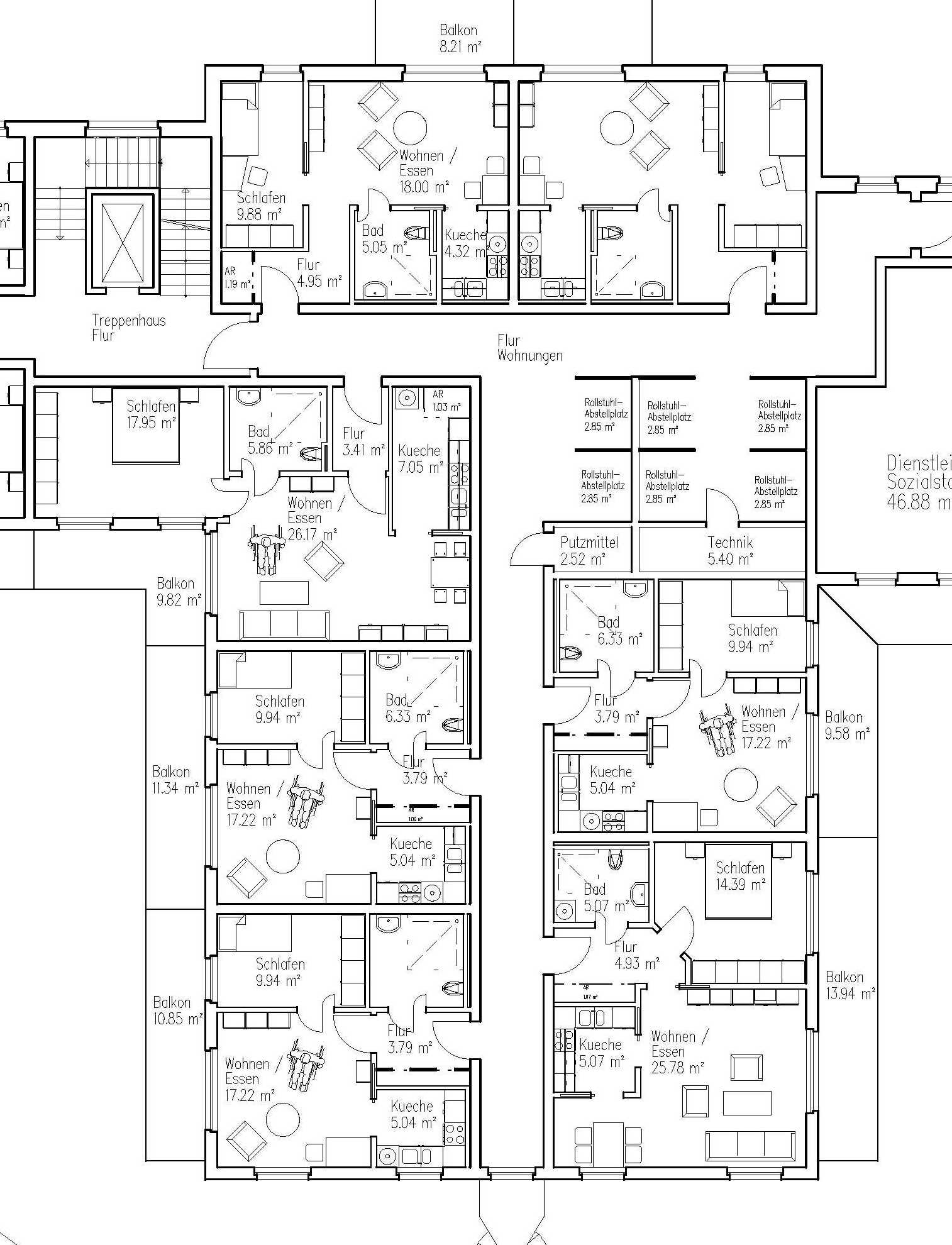
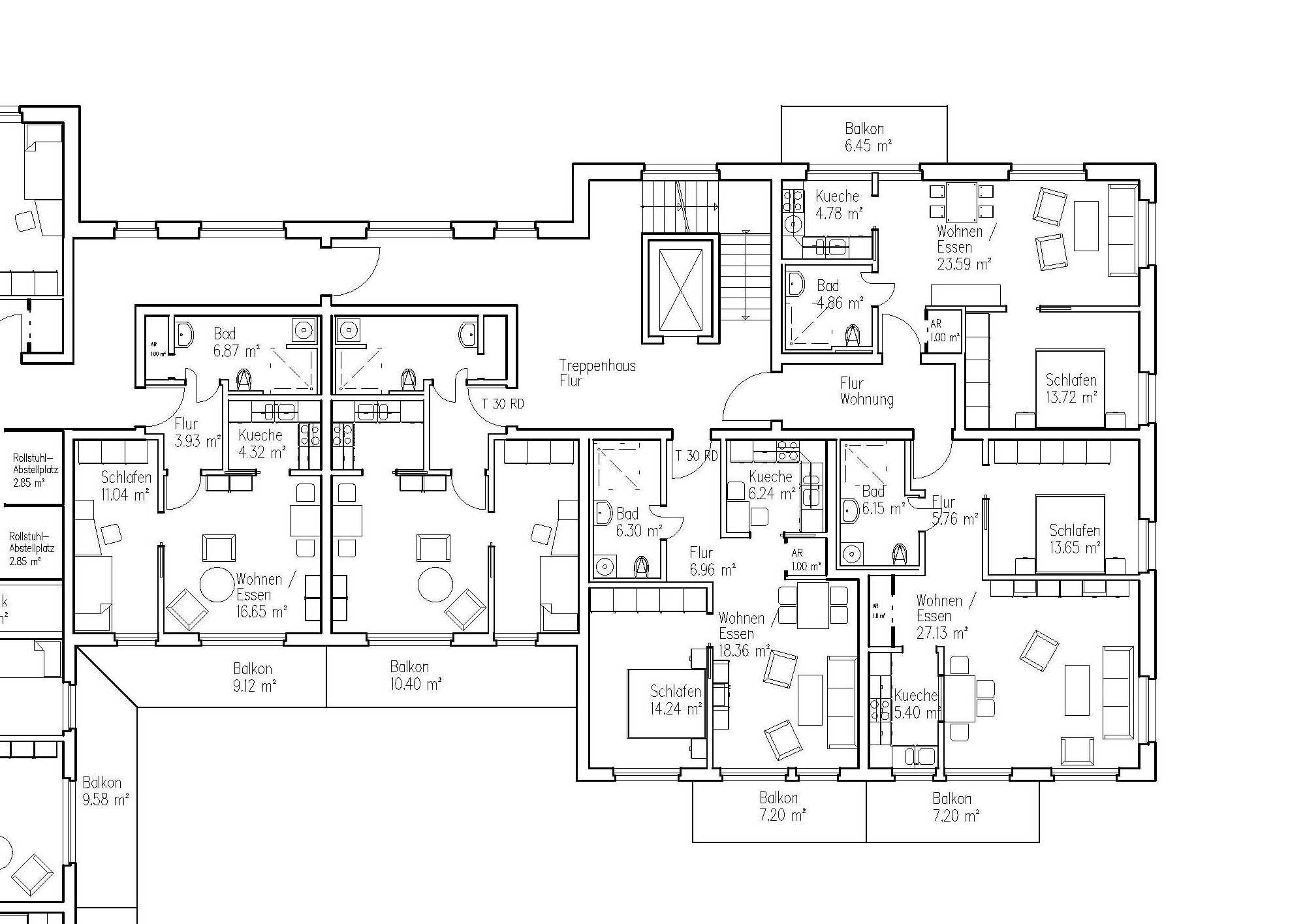
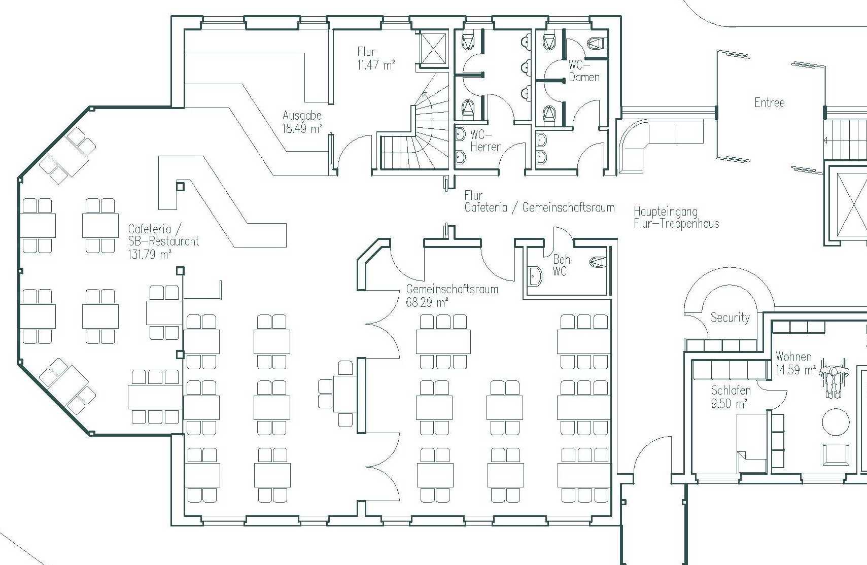
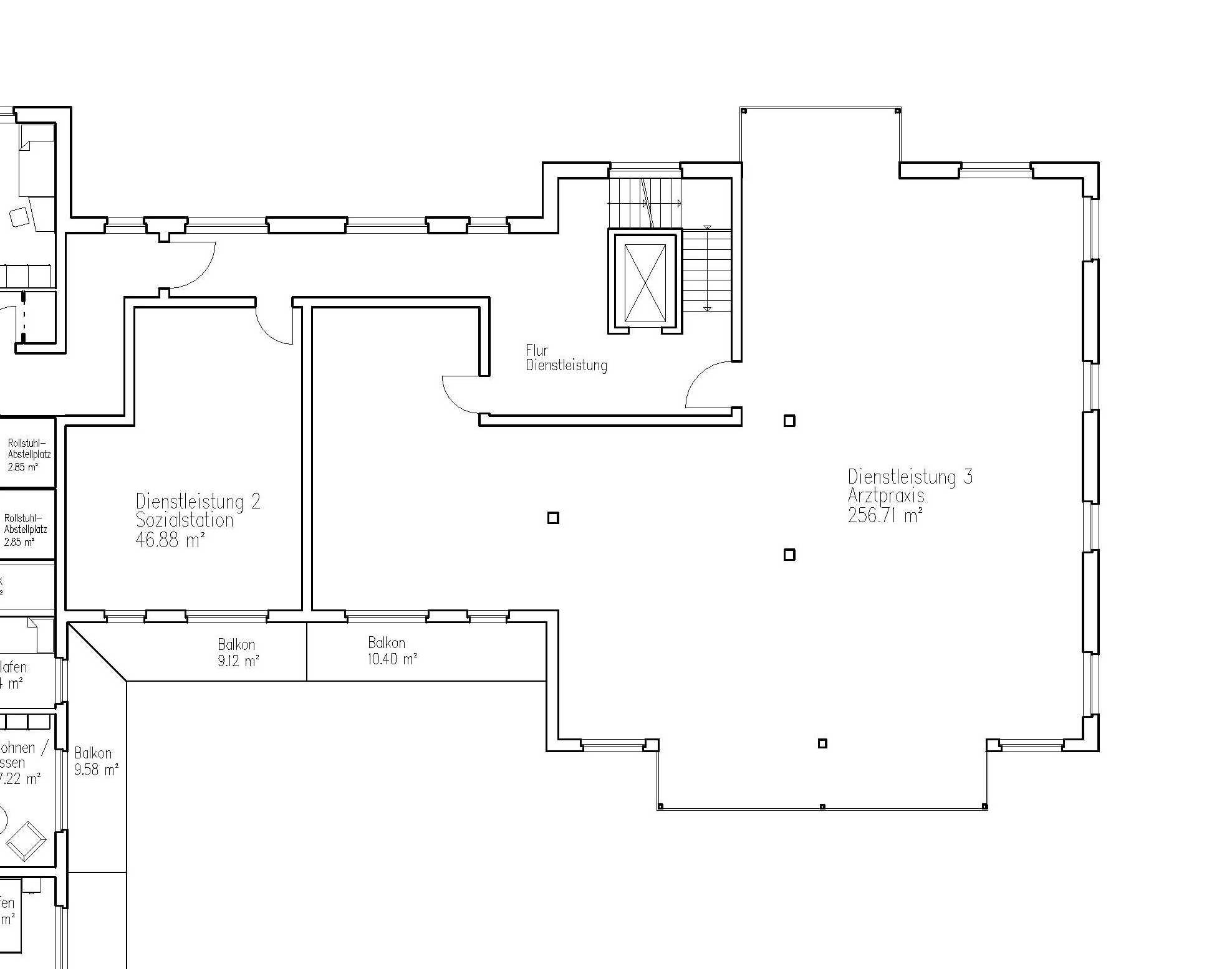
Die Konzeption sieht für die Nutzung des Gebäudes im Erdgeschoss eine Demenzwohngemeinschaft , eine Arztpraxis und ein Café / SB- Restaurant mit Gemeinschaftsräumen für die barrierefreien bzw. behindertengerechten Wohnungen vor. Im 1.Obergeschoß ist ebenfalls eine Praxis sowie weitere Bürofläche für den Dienstleistungbereich vorgesehen. Die weiteren Flächen beinhalten barrierefreie bzw. behindertengerechte Ein- und Zweipersonen-Wohnungen von 45 – 66 m² Wohnfläche. Im 2.Obergeschoß befinden sich ebenfalls barrierefreie bzw. behindertengerechte Ein- und Zweipersonen-Wohnungen von 45 – 66 m² Wohnfläche,sowie im Dachgeschoss. Zusätzlich im Dachgeschoß eine barrierefreie Drei-Personen-Wohnungen um 120 m² Wohnfläche und eine barrierefreie Drei-Personen-Penthousewohnung. Das Kellergeschoß beinhaltet Fitness- und Wellnessbereich , Kreativraum , eine zweiten Gemeinschaftsraum sowie die jeweiligen Wohnungskellerräume . Alle Etagen sind über behindertengerechte Aufzüge ( krankentragegeeignet ) erreichbar. |
||||||||||||||||||||||||||||||||||
![]() |
||||||||||||||||||||||||||||||||||
|
Die Reihenhausbebauung im hinteren Grundstücksbereich ist durch einen mit Rankgerüsten und Gitterwänden versehenen Laubengang mit dem vorderen Gebäude verbunden, in dem ein geschlossener Pavillon integriert ist , der als Kommunikationsbereich und Rastbereich genutzt werden kann. Unter dem Pavillon befindet sich die Heizzentrale für beide Gebäude. |
||||||||||||||||||||||||||||||||||
![]() |
||||||||||||||||||||||||||||||||||
|
Die Wohnungen in der Reihenhausbebauung sind durch einen teilgeschlossenen Laubengang barrierefrei erreichbar. Die Aufzüge sind hier ebenfalls für Notfalltragen ausgelegt , als rollstuhlgerecht ausgeführt. Die Fassade ist im Laubengangbereich als Stahlkonstruktion vorgesehen , die farbig abgesetzt wird , mit zwischenliegenden Fensterelementen im Treppenhaus und bei den Wohnungs-Eingängen . Alle weiteren Bereichen sind offen mit Geländer . |
||||||||||||||||||||||||||||||||||
![]() |
||||||||||||||||||||||||||||||||||
|
Die Fassade des Baukörpers „Innenbebauung“ ist als WDVS-Fassade mit leicht eingefärbten Putz ( helles Grau ) mit einer grauen Bänderung als Farbkontrast vorgesehen. Alle Fenster dieses Baukörpers sind als Kunststofffenster in weiss vorgesehen. Für die Dacheindeckung dieses Baukörpers sieht das Farbkonzept ein Pfannendach in rot und für die Gauben eine Stulp-Deckel-Schalung aus Lerchenholz vor. |
||||||||||||||||||||||||||||||||||
![]() |
||||||||||||||||||||||||||||||||||
|
Die Tiefgarage ist als offene Tiefgarage ( 34 Stellplätze ) ohne mechanische Lüftung ausgebildet . Durch entsprechend dimensionierte Fassadenöffnungen ist ein ausreichender Luftdurchfluß gewährleiste. |
||||||||||||||||||||||||||||||||||
![]() |
![]() |
|||||||||||||||||||||||||||||||||
|
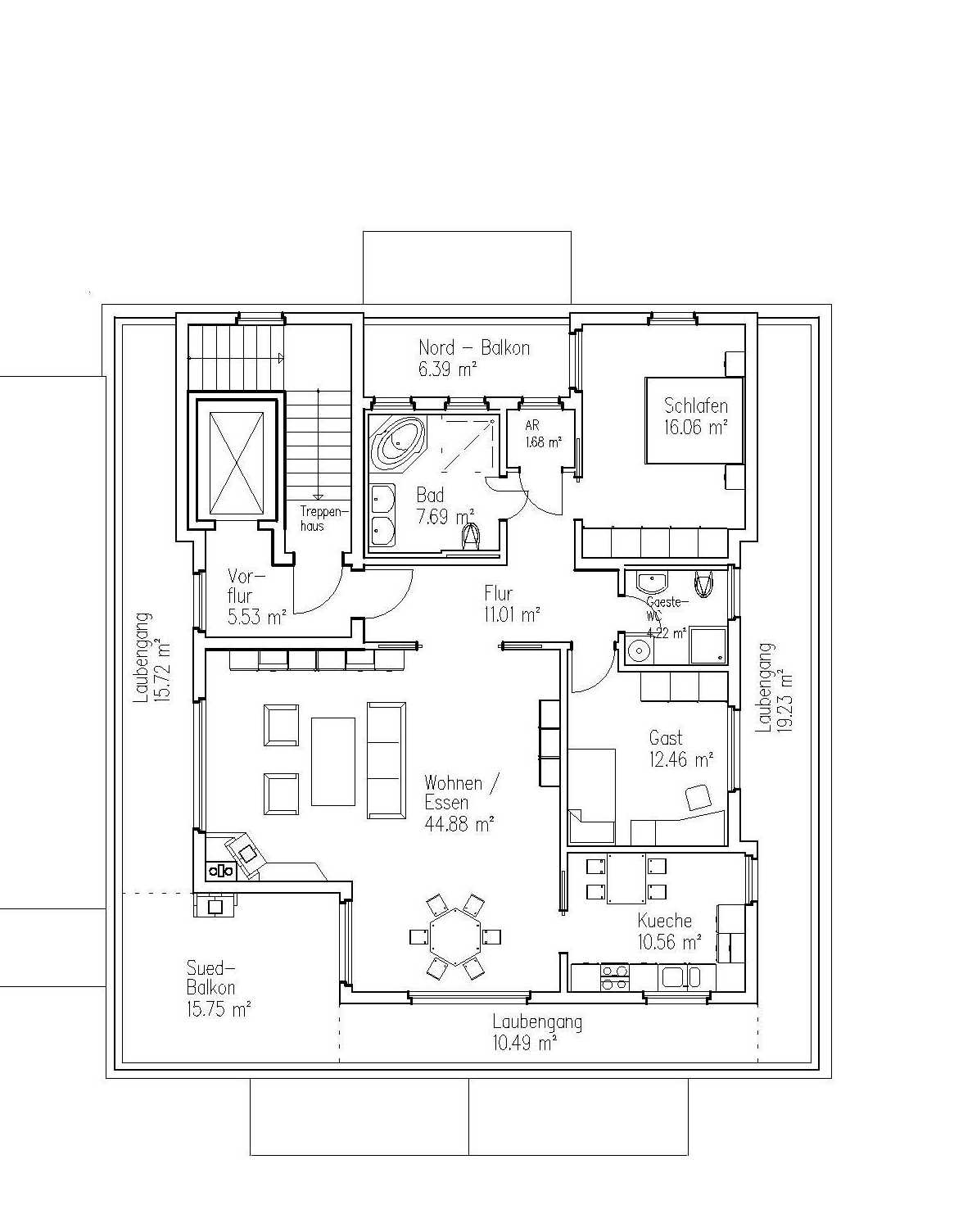
Die Wohnungen im Dachgeschoss sind als große zusammenhängende Wohnung mit großer Wohnfläche ausgelegt. Die barrierefreien Ein- und Zweipersonen-Wohnungen haben im Erdgeschoss und Obergeschoss eine Größe von 44 m² bis 56 m² Wohnfläche und im Dachgeschoss bis zu 92 m² Wohnfläche. |
||||||||||||||||||||||||||||||||||
![]() |
||||||||||||||||||||||||||||||||||
|
Die Aussenanlage wird barrierefrei angelegt und erhält eine entsprechende angepaßte Begrünung. In der Mitte der Anlage lädt eine „Piazetta“ zum Verweilen und zur Kommunikation ein. Die Geschwindigkeit der Fahrzeuge wird wie bei einer Spielstrasse auf 10 km/h festgelegt und durch entsprechende Baumaßnahmen aber barrierefrei für Fussgänger und Rollstuhlfahrer unterstützt.. Im gesamten Areal stehen genügend Park- und Stellplätze für die Anlage zur Verfügung. Die Behindertenparkplätze werden als Carport ausgelegt. Durch die geschlossenen Laubengänge und der geplanten Videoüberwachung dieser , als auch der Außenanlage und der Tiefgarage ist in Verbindung mit dem vorgesehenen „Security Platz" eine erhöhte Sicherheit speziell im abendlichen Bereich gegeben, die die Wohnqualität der Anlage erheblich steigert. |
||||||||||||||||||||||||||||||||||