 |
 |
 |
 |
 |
 |
 |
 |
 |
 |
 |
 |
 |
 |
 |
 |
 |
 |
 |
 |
 |
 |
 |
 |
 |
 |
 |
 |
 |
 |
 |
 |
 |
 |
 |
 |
|
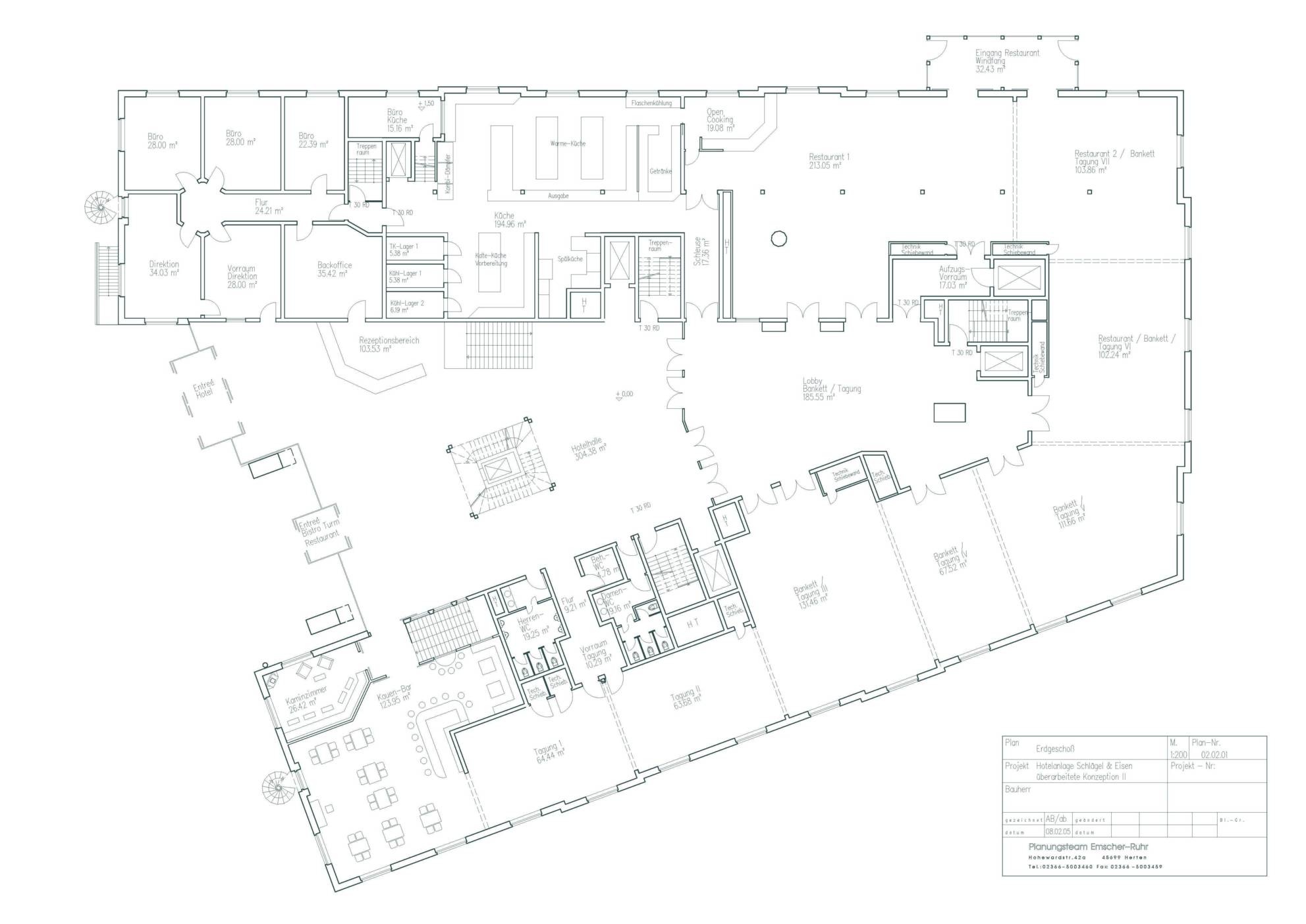
Nach Durchschreiten des Hoteleinganges oder des Restauranteinganges empfängt den Gast eine der Welt des Bergbaus nachempfundenen Eingangsbereich der „Kumpel“ [ Bezeichnung für einen Bergmann im Ruhrgebiet unter Tage ] ( Stempeluhr , Hängebank [ Bereich über mehrere Ebenen vor dem Förderkorb zur Personenbeförderung] ) und der Führungsebene eines Bergwerkes ( Dies wird durch technische Konstruktion, Dekoration und Wandmalereien verdeutlicht ).
|
|
|
|
 |
|
|
|
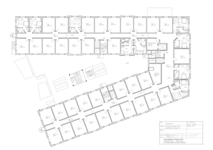
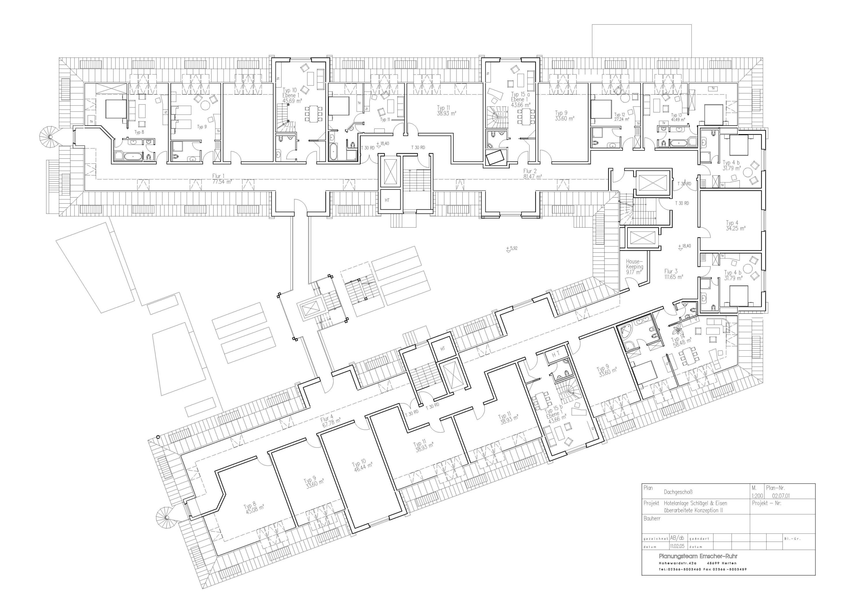
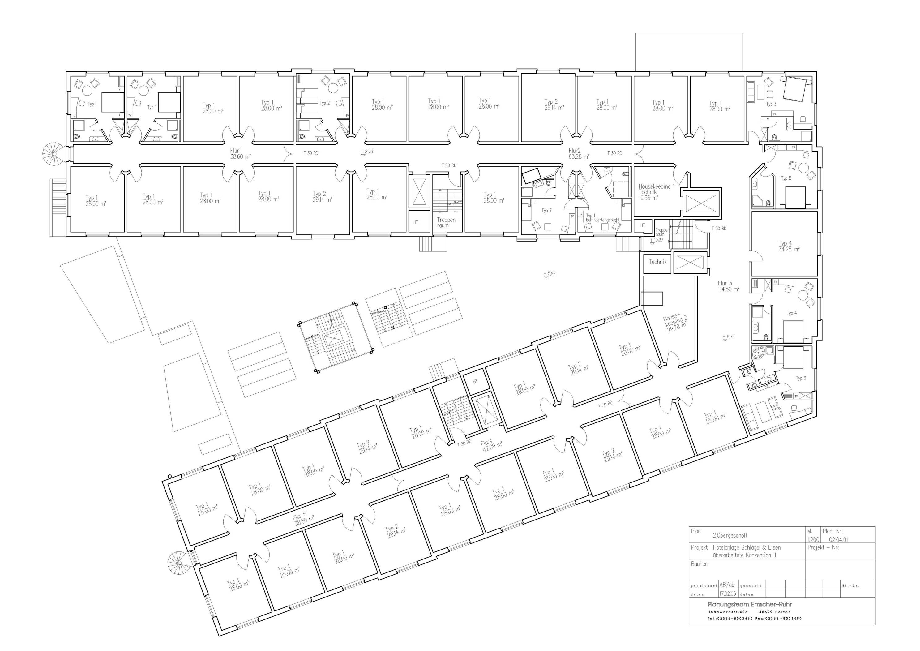
Das Hotel hat 8 Standardzimmer als Einzelzimmer , 4 davon als Behindertengerechte Zimmer mit jeweils einem möglichen Betreuungseinzelzimmer angrenzend , 150 Standardzimmer als Doppelzimmer mit Doppelbetten oder zwei getrennten Betten , 17 Comfortzimmer , von den Räumlichkeiten weitaus größer , sonst vergleichbar mit den Standard-Doppelzimmern , sowie 10 Deluxe-Zimmer mit großzügigen Badbereich und getrennten Wohn-/Schlafbereich.
|
|
|
|
 |
|
|
|
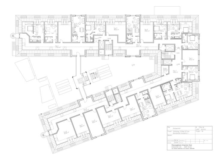
Die 3 Junior-Suiten als auch die 2 Suiten , die zusätzlich mit einem Gaskamin ausgestattet sind , bieten auf Grund der Aufteilung in Wohn/Ess/Schlafbereiche , teilweise über 2 Ebenen und der großzügigen Badlandschaft gehobensten Wohnkomfort
|
|
|
|
 |
|
|
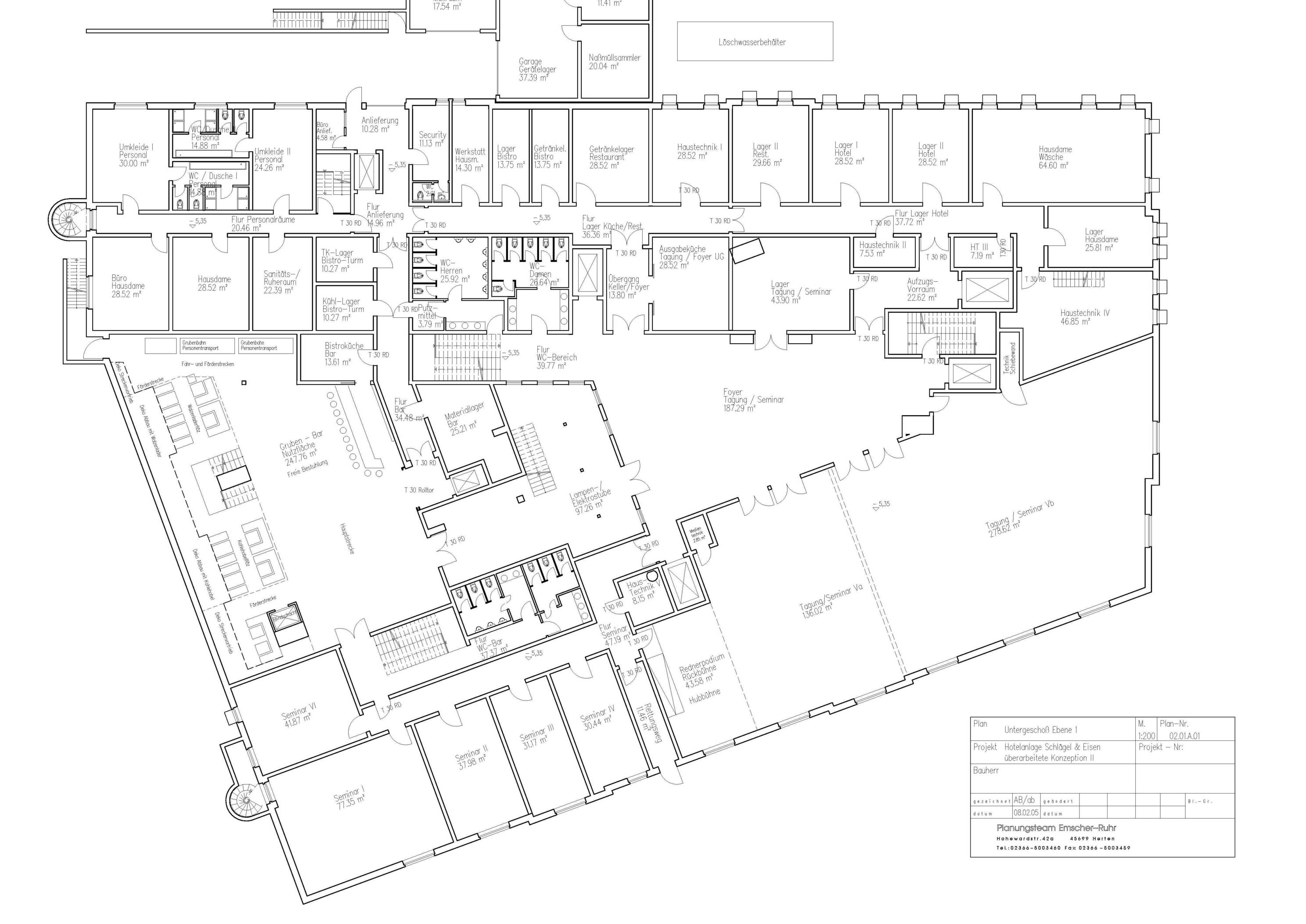
Im Untergeschoß hat der Gast die Möglichkeit die großflächige Grubenbar zu nutzen. Hier wird auf 2 Ebenen , die durch eine Treppe und einem Behelfsaufzug ( Blindschacht ) verbunden sind ,die Arbeit der Bergleute in einem Untertagebetrieb in unterschiedlichen Zeitepochen dargestellt. Zwischen der Grubenbar und dem Foyer des großen Tagungsraumes im Untergeschoß bietet die Lampen- und Elektrostube über teilweise 2 Ebenen gehobene Spielautomaten und andere gehobene Spielmöglichkeiten an.
|
|
|
|
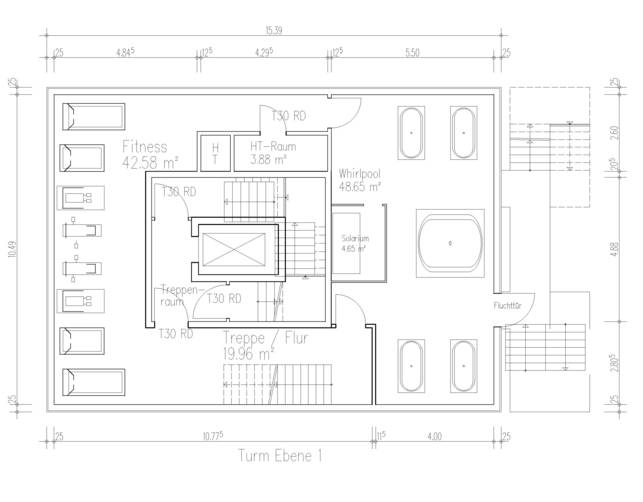
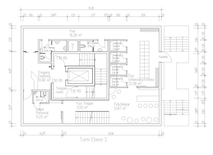
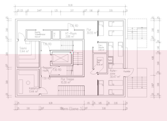
DasHotel bietet für den Gast einen kleinen aber feinen Wellnessbereich in dem nachempfundenen Förderturm , der mit seiner Höhe den Blick über das gesamte Ruhrgebiet ermöglicht.
|
|
|
|
 |
|
|
|
 |
|
|
|
In dem Wellnessbereich wird Sauna , Solarium , Kaldarium . Dampfbad , Fitness , Ruhezone sowie eine kleine Früchtebar angeboten
|
|
|
|
 |
|
|
|
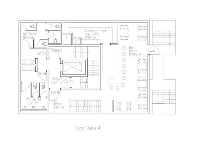
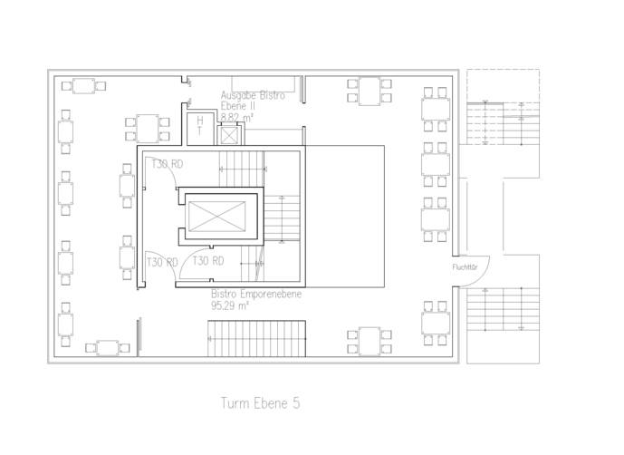
Über den Wellnessbereich bietet das Hotel im Förderturm in dem obersten Bereich ein Bistro über 2 Ebene an.
|
|
|
|
 |
|
|
|
Hier hat der Gast die Möglichkeit Getränke und kleine Snacks in ruhiger Atmosphäre mit dem Gefühl des "Erhabenseins" über der Skyline der Ruhr-Area zu genießen.
|
|
|
|
 |
|
|
|
Auf der Aussichtsplattform als höchsten Punkt bietet sich dem Gast der weitreichende Blick über das gesamte Ruhrgebiet
|
|
|
|
 |
|
|
|
 |
|