Profil

 Projektmanagement

 Planung

 Objektüberwachung

 Baukoordination

 Referenzen

 Kontakt

Seitenanfang

created by PBB Baumann

Seitenanfang

Seitenanfang

Seitenanfang

Seitenanfang

Seitenanfang

created by PBB  Baumann

Planung heißt für uns Teamwork, d.h. wenn erforderlich wird der entsprechende Partner gleich von Anfang an mit in die Vorplanung integriert, um ein Maximum an Ergebnissen und Qualität für den Bauherrn zu erreichen.

detail2_a

Planung beinhaltet für uns als Team eine enge Kooperation mit dem Bauherrn aber auch Entlastung desselben, um seine Wünsche in einem von Ihm gesteckten Kostenrahmen in Zusammenarbeit mit den einzelnen Behörden und Ämtern und anderweitig am Bau Beteiligten zu optimieren und entsprechend zeichnerisch umzusetzen.

Plan10_b
Altraeplan2b

Zum Einsatz kommen bei uns, außer altbewährter Handarbeit im Bereich der Entwurfsskizzen auch modernste CAD Computertechnik mit Animationen, die Ihren Einsatz im Bereich der Entwurfsplanung als auch in der Werkplanung in allen bei uns aufgeführten künstlerischen und technischen Leistungen findet.

Plan2_b
Altraeplan1b
Altraeplan3b

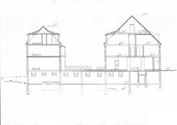
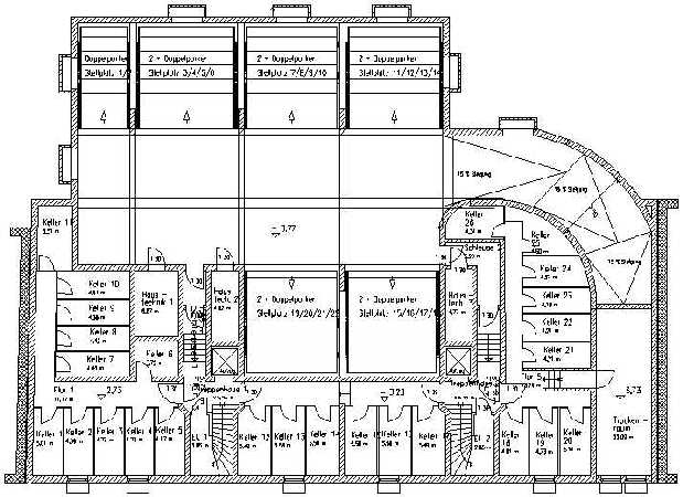
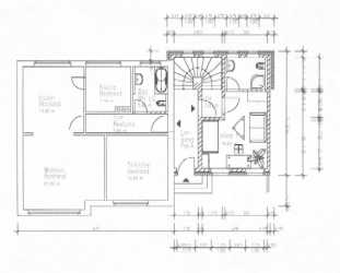
Detailplanung als ein Schwerpunkt in der Ausführungs- Werkplanung egal in welchem ingenieurmäßigen Bereich, heißt für unser Team nicht nur Regeldetails zu erstellen, sondern daß Schwerpunkte im Bereich der Konstruktion so dargestellt werden, daß die Firmen an der Baustelle die Ausführung auch entsprechend der Planung umsetzen können.

BucheKG

Detailplanung bedeutet auch im Rahmen der Ausschreibung eine genauere Definition der auszuführenden Arbeiten und daraus folgernd eine bessere Einschätzung der Zeitkomponenten an der Baustelle ( Bauzeitenplan ) als auch eine detailliertere Kosteneinschätzung und daraus folgernd eine bessere  Kostenkontrolle im Sinne und zum Wohle des Bauherrn

detail1

Die Planung ist zusammen mit unseren Partnern im Rahmen des Datenver- bundes im EDV- Bereich immer auf dem aktuellen Stand, so daß z.B. auch Massenänderungen durch statische Gegebenheiten durch Schnittstellen im EDV Programm direkt in die AVA einfließen können.

a_BasicLine